Las cookies nos permiten ofrecer nuestros servicios. Al utilizar nuestros servicios, aceptas el uso que hacemos de las cookies. Más información
22.000 TESELAS
El Hotel SILKEN SAAJ MAAR incorpora una nueva pieza de categoría cuatro estrellas a la planta alojativa del Puerto de la Cruz, uno de los destinos turísticos más consolidados del archipiélago canario y exponente de su principal industria económica.
Implantado en primera línea del Paseo San Telmo, el edificio se enfrenta directamente a las condiciones extremas del litoral atlántico. La fuerza constante del viento y el impacto del oleaje sobre la roca volcánica caracterizan este emplazamiento.
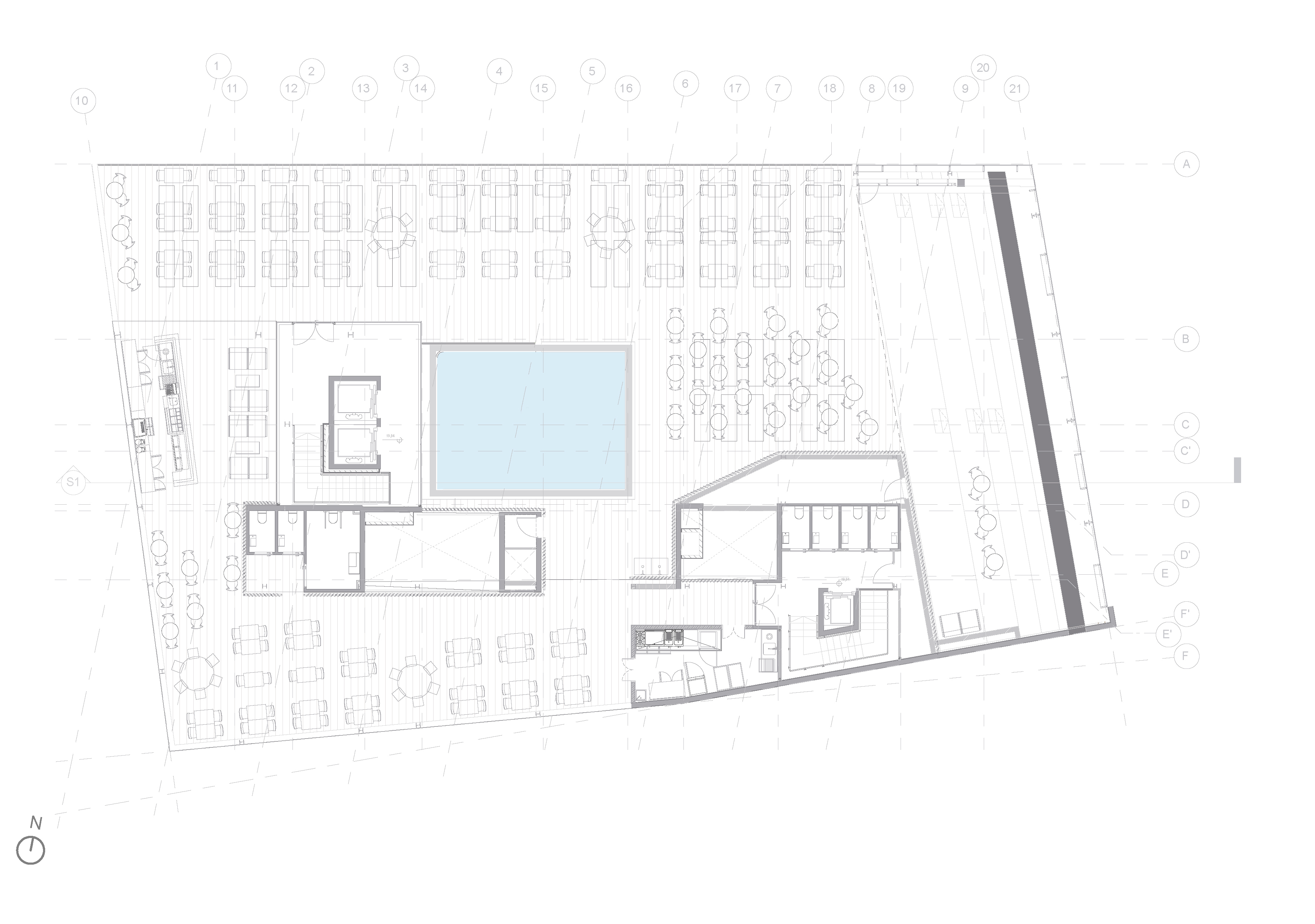
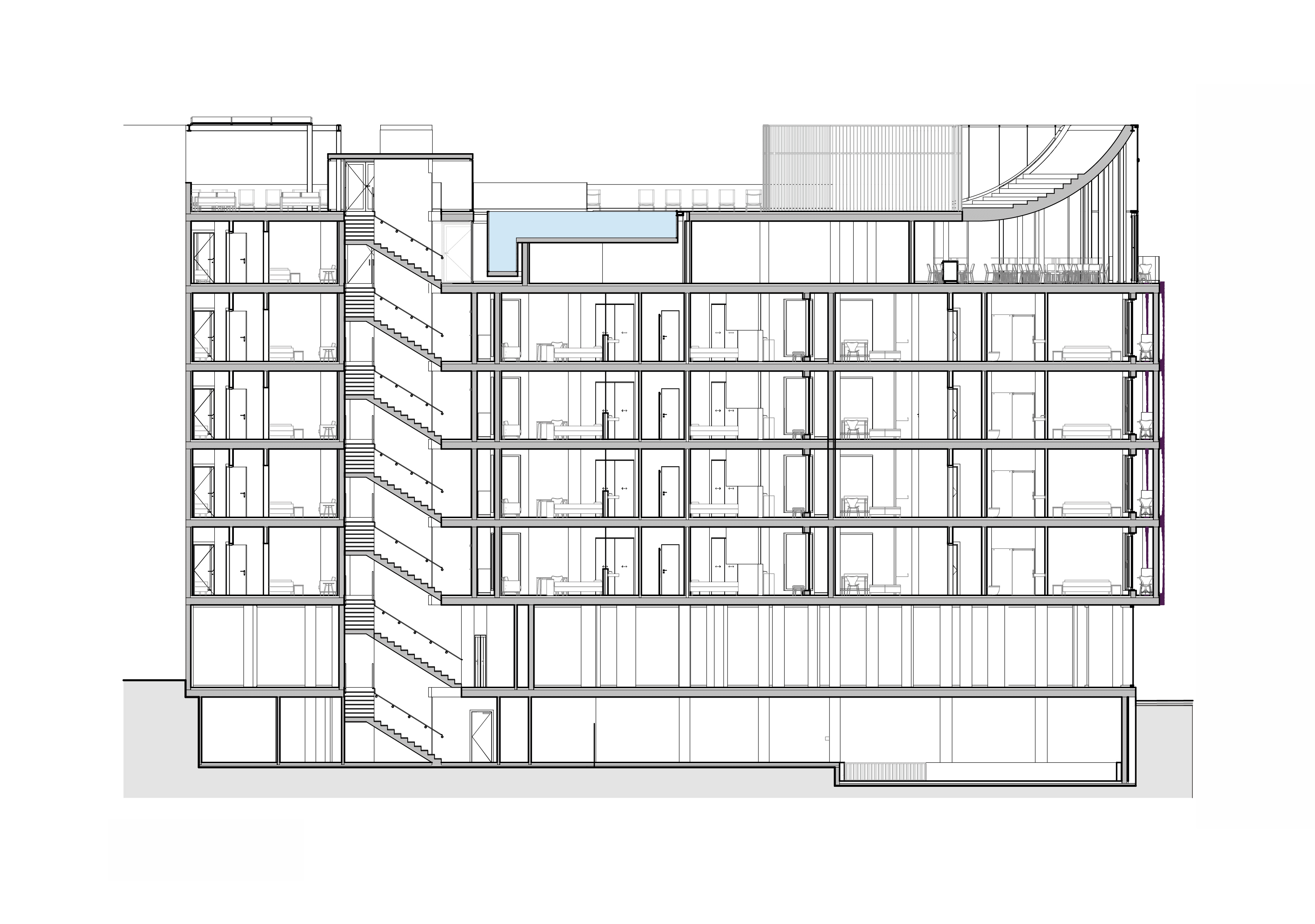
La construcción original se organizaba en torno a dos anillos concéntricos de habitaciones: uno interior y otro exterior. Esta disposición resultaba poco homogénea y por tanto ineficiente en lo que se refería al acceso a las vistas al mar, generando dificultades al operador en la tarificación del establecimiento turístico. Las habitaciones del anillo exterior actuaban como una pantalla que bloqueaba las perspectivas de las unidades y recorridos del anillo interior.
En este contexto nos pareció que el proyecto podía ser una buena herramienta para equilibrar mediante la manipulación de la forma las fluctuaciones en las dinámicas de precios del establecimiento turístico. Introdujimos dos espacios vacíos, inundables y pétreos, en sentido perpendicular a las fachadas en cuatro de las plantas, proporcionando con esta operación corredores visuales a las habitaciones y los recorridos del anillo interior. Estos corredores generan una conexión simbólica con el paisaje inmediato de piscinas naturales y rocas volcánicas que definen el borde marítimo del enclave.
Aprovechando la posibilidad normativa de adicionar una planta, se apila una nueva estructura por encima de los niveles existentes. Esta estructura se materializa mediante un forjado que se curva en la zona del salón multiusos, ganando altura y volumen para configurar un graderío en la cubierta. Este nuevo nivel acoge además la nueva recepción del hotel –una superficie continua de doble curvatura realizada en madera– , la piscina con pared transparente moldeada y un restaurante vinculado al solárium. El nuevo espacio funciona como un sistema de elementos autónomos, compuesto por piezas singulares que construyen un territorio dinámico, atravesado por flujos, imágenes y acciones.
La fachada del edificio es una piel porosa, conformada por veintidós mil teselas móviles de aluminio resultado de un proceso de diseño paramétrico, revestidas con pintura dicróica y concebidas para optimizar el comportamiento térmico del edificio. Esta envolvente reduce significativamente la incidencia solar, mejorando el aislamiento pasivo y disminuyendo la dependencia de sistemas mecánicos de climatización.
En consonancia con este enfoque, las instalaciones del edificio han sido proyectadas bajo criterios de máxima eficiencia, incorporando tecnologías de recuperación energética que refuerzan el balance energético del conjunto.
La orientación expuesta al viento se convierte en el motor conceptual del proyecto. Este estímulo atmosférico, dominante en el litoral, informa decisiones a todas las escalas del diseño. La fachada reacciona activamente a la intensidad del estímulo viento, transformando la condición ambiental en un fenómeno arquitectónico. Así, el edificio se plantea como una arquitectura viva, capaz de establecer intercambios con su entorno inmediato y de manifestar su adaptabilidad a las condiciones cambiantes del medio.
El edificio amplifica las cualidades intrínsecas del lugar al accionar el sistema de teselas móviles de la piel. La nueva envolvente transforma la percepción del emplazamiento, evidenciando la potencia del viento que penetra hasta el núcleo del edificio mediante los vacíos inundables.
2025
Tenerife
5.195,73 m2
Privado
2025
Tenerife
5.195,73 m2
Privado
Rehabilitación
Hemos detectado que está usando Internet Explorer en su ordenador para navegar en esta web. Internet Explorer es un antiguo navegador que no es compatible con nuestra página web y Microsoft aconseja dejar de usarlo ya que presenta diversas vulnerabilidades. Para el uso adecuado de esta web tiene que usar alguno de los navegadores seguros y que se siguen actualizando a día de hoy como por ejemplo:

El acceso a este Sitio Web puede implicar la utilización de cookies. Las cookies son pequeñas cantidades de información que se almacenan en el navegador utilizado por cada Usuario —en los distintos dispositivos que pueda utilizar para navegar— para que el servidor recuerde cierta información que posteriormente y únicamente el servidor que la implementó leerá. Las cookies facilitan la navegación, la hacen más amigable, y no dañan el dispositivo de navegación.
Las cookies son procedimientos automáticos de recogida de información relativa a las preferencias determinadas por el Usuario durante su visita al Sitio Web con el fin de reconocerlo como Usuario, y personalizar su experiencia y el uso del Sitio Web, y pueden también, por ejemplo, ayudar a identificar y resolver errores.
La información recabada a través de las cookies puede incluir la fecha y hora de visitas al Sitio Web, las páginas visionadas, el tiempo que ha estado en el Sitio Web y los sitios visitados justo antes y después del mismo. Sin embargo, ninguna cookie permite que esta misma pueda contactarse con el número de teléfono del Usuario o con cualquier otro medio de contacto personal. Ninguna cookie puede extraer información del disco duro del Usuario o robar información personal. La única manera de que la información privada del Usuario forme parte del archivo Cookie es que el usuario dé personalmente esa información al servidor.
Las cookies que permiten identificar a una persona se consideran datos personales. Por tanto, a las mismas les será de aplicación la Política de Privacidad anteriormente descrita. En este sentido, para la utilización de las mismas será necesario el consentimiento del Usuario. Este consentimiento será comunicado, en base a una elección auténtica, ofrecido mediante una decisión afirmativa y positiva, antes del tratamiento inicial, removible y documentado.
Cookies propias
Son aquellas cookies que son enviadas al ordenador o dispositivo del Usuario gestionadas exclusivamente por https://estudiouad.com para el mejor funcionamiento de los sitios Web. La información que se recaba se emplea para mejorar la calidad de los sitios Web y su Contenido y su experiencia como Usuario. Estas cookies permiten reconocer al Usuario como visitante recurrente de los sitios Web y adaptar el contenido para ofrecerle contenidos que se ajusten a sus preferencias.
Cookies de terceros
Son cookies utilizadas y gestionadas por entidades externas que proporcionan a https://estudiouad.com servicios solicitados por este mismo para mejorar el sitio Web y la experiencia del usuario al navegar en el sitio Web. Los principales objetivos para los que se utilizan cookies de terceros son la obtención de estadísticas de accesos y analizar la información de la navegación, es decir, cómo interactúa el Usuario con el sitio Web.
La información que se obtiene se refiere, por ejemplo, al número de páginas visitadas, el idioma, el lugar a la que la dirección IP desde el que accede el Usuario, el número de Usuarios que acceden, la frecuencia y reincidencia de las visitas, el tiempo de visita, el navegador que usan, el operador o tipo de dispositivo desde el que se realiza la visita. Esta información se utiliza para mejorar el sitio Web, y detectar nuevas necesidades para ofrecer a los Usuarios un Contenido y/o servicio de óptima calidad. En todo caso, la información se recopila de forma anónima y se elaboran informes de tendencias del sitio Web sin identificar a usuarios individuales.
Puede obtener más información sobre las cookies, la información sobre la privacidad, o consultar la descripción del tipo de cookies que se utiliza, sus principales características, periodo de expiración, etc. en el siguiente(s) enlace(s):
Firefox https://support.mozilla.org/es/kb/Deshabilitar%20c...
Chrome http://support.google.com/chrome/bin/answer.py?hl=...
Internet Explorer http://windows.microsoft.com/es-es/internet-explor...
Safari -> Seleccione Safari > Preferencias, haga clic en Privacidad
Opera http://help.opera.com/Windows/11.50/es-ES/cookies....
Windows Phone https://support.microsoft.com/es-es/help/10635/win...
Android ->Ajustes del navegador utilizado->Privacidad del navegador utilizado
La(s) entidad(es) encargada(s) del suministro de cookies podrá(n) ceder esta información a terceros, siempre y cuando lo exija la ley o sea un tercero el que procese esta información para dichas entidades.
Cookies de redes sociales
https://estudiouad.com incorpora plugins de redes sociales, que permiten acceder a las mismas a partir de los sitios Web. Por esta razón, las cookies de redes sociales pueden almacenarse en el navegador del Usuario. Los titulares de dichas redes sociales disponen de sus propias Políticas de Protección de Datos y de cookies, siendo ellos mismos, en cada caso, Responsables de sus propios ficheros y de sus propias prácticas de Privacidad. El Usuario debe referirse a las mismas para informarse acerca de dichas cookies y, en su caso, del tratamiento de sus datos personales. Únicamente a título informativo se indican a continuación los enlaces en los que se pueden consultar dichas políticas de privacidad y/o de cookies:
Facebook: https://www.facebook.com/policies/cookies/
Twitter: https://twitter.com/es/privacy
Instagram: https://help.instagram.com/1896641480634370?ref=ig
YouTube: https://policies.google.com/privacy?hl=es-419&gl=mx
Google+: https://policies.google.com/technologies/cookies?hl=es
Pinterest: https://policy.pinterest.com/es/privacy-policy
LinkedIn: https://www.linkedin.com/legal/cookie-policy?trk=hp-cookies
Deshabilitar, rechazar y eliminar cookies
El Usuario puede deshabilitar, rechazar y eliminar las cookies —total o parcialmente— instaladas en su dispositivo mediante la configuración de su navegador (entre los que se encuentran, por ejemplo, Chrome, Firefox, Safari, Explorer). En este sentido, los procedimientos para rechazar y eliminar las cookies pueden diferir de un navegador de Internet a otro. En consecuencia, el Usuario debe acudir a las instrucciones facilitadas por el propio navegador de Internet que esté utilizando. En el supuesto de que rechace el uso de cookies —total o parcialmente— podrá seguir usando el Sitio Web, si bien podrá tener limitada la utilización de algunas de las prestaciones del mismo.
V01.24 14.02.24

AVISO LEGAL Y CONDICIONES GENERALES DE USO DEL SITIO WEB
I. INFORMACIÓN GENERAL
En cumplimiento con el deber de información dispuesto en la Ley 34/2002 de Servicios de la Sociedad de la Información y el Comercio Electrónico (LSSI-CE) de 11 de julio, se facilitan a continuación los siguientes datos de información general de este Sitio Web:
La titularidad de este Sitio Web, https://estudiouad.com (en adelante, Sitio Web) corresponde a
Estudio UAD (Juan José Martínez Rodríguez) – NIF 78488815G
Dirección:
Calle León y Castillo, nº 335 – C.P. 35006 Las Palmas de Gran Canaria – Las Palmas
Correo electrónico: jjmartinez@estudiouad.com
II. TÉRMINOS Y CONDICIONES GENERALES DE USO
El objeto de las condiciones: El Sitio Web
El objeto de las presentes Condiciones Generales de Uso (en adelante, Condiciones) es regular el acceso y la utilización del Sitio Web. A los efectos de las presentes Condiciones se entenderá como Sitio Web: la apariencia externa de los interfaces de pantalla, tanto de forma estática como de forma dinámica, es decir, el árbol de navegación; y todos los elementos integrados tanto en los interfaces de pantalla como en el árbol de navegación (en adelante, Contenidos) y todos aquellos servicios o recursos en línea que en su caso ofrezca a los Usuarios (en adelante, Servicios).
El Responsable del Fichero se reserva la facultad de modificar, en cualquier momento, y sin aviso previo, la presentación y configuración del Sitio Web y de los Contenidos y Servicios que en él pudieran estar incorporados. El Usuario reconoce y acepta que en cualquier momento el Responsable del Fichero pueda interrumpir, desactivar y/o cancelar cualquiera de estos elementos que se integran en el Sitio Web o el acceso a los mismos.
El acceso al Sitio Web por el Usuario tiene carácter libre y, por regla general, es gratuito sin que el Usuario tenga que proporcionar una contraprestación para poder disfrutar de ello, salvo en lo relativo al coste de conexión a través de la red de telecomunicaciones suministrada por el proveedor de acceso que hubiere contratado el Usuario.
La utilización de alguno de los Contenidos o Servicios del Sitio Web podrá hacerse mediante la suscripción o registro previo del Usuario.
El Usuario
El acceso, la navegación y uso del Sitio Web, así como por los espacios habilitados para interactuar entre los Usuarios, el Usuario y el Responsable del Fichero, como los comentarios y/o espacios de blogging, que confiere la condición de Usuario, por lo que se aceptan, desde que se inicia la navegación por el Sitio Web, todas las Condiciones aquí establecidas, así como sus ulteriores modificaciones, sin perjuicio de la aplicación de la correspondiente normativa legal de obligado cumplimiento según el caso. Dada la relevancia de lo anterior, se recomienda al Usuario leerlas cada vez que visite el Sitio Web.
En el Sitio Web el Responsable del Fichero proporciona gran diversidad de información, servicios y datos. El Usuario asume su responsabilidad para realizar un uso correcto del Sitio Web. Esta responsabilidad se extenderá a:
El Responsable del Fichero se reserva el derecho de retirar todos aquellos comentarios y aportaciones que vulneren la ley, el respeto a la dignidad de la persona, que sean discriminatorios, xenófobos, racistas, pornográficos, spamming, que atenten contra la juventud o la infancia, el orden o la seguridad pública o que, a su juicio, no resultaran adecuados para su publicación.
En cualquier caso, el Responsable del Fichero no será responsable de las opiniones vertidas por los Usuarios a través de comentarios u otras herramientas de blogging o de participación que pueda haber.
El mero acceso a este Sitio Web no supone entablar ningún tipo de relación de carácter comercial entre el Responsable del Fichero y el Usuario.
El Usuario declara ser mayor de edad y disponer de la capacidad jurídica suficiente para vincularse por las presentes Condiciones. Por lo tanto, el Sitio Web del Responsable del Fichero no se dirige a menores de edad. El Responsable del Fichero declina cualquier responsabilidad por el incumplimiento de este requisito.
El Sitio Web está dirigido principalmente a Usuarios residentes en España. No asegura que el Sitio Web cumpla con legislaciones de otros países, ya sea total o parcialmente. Si el Usuario reside o tiene su domiciliado en otro lugar y decide acceder y/o navegar en el Sitio Web lo hará bajo su propia responsabilidad, deberá asegurarse de que tal acceso y navegación cumple con la legislación local que le es aplicable, no asumiendo el Responsable del Fichero responsabilidad alguna que se pueda derivar de dicho acceso.
III. ACCESO Y NAVEGACIÓN EN EL SITIO WEB: EXCLUSIÓN DE GARANTÍAS Y RESPONSABILIDAD
Estudio UAD (Juan José Martínez Rodríguez) no garantiza la continuidad, disponibilidad y utilidad del Sitio Web, ni de los Contenidos o Servicios. Estudio UAD (Juan José Martínez Rodríguez) hará todo lo posible por el buen funcionamiento del Sitio Web, sin embargo, no se responsabiliza ni garantiza que el acceso a este Sitio Web no vaya a ser ininterrumpido o que esté libre de error.
Tampoco se responsabiliza o garantiza que el contenido o software al que pueda accederse a través de este Sitio Web esté libre de error o cause un daño al sistema informático (software y hardware) del Usuario. En ningún caso Estudio UAD (Juan José Martínez Rodríguez) será responsable por las pérdidas, daños o perjuicios de cualquier tipo que surjan por el acceso, navegación y el uso del Sitio Web, incluyéndose, pero no limitándose, a los ocasionados a los sistemas informáticos o los provocados por la introducción de virus.
Estudio UAD (Juan José Martínez Rodríguez) tampoco se hace responsable de los daños que pudiesen ocasionarse a los usuarios por un uso inadecuado de este Sitio Web. En particular, no se hace responsable en modo alguno de las caídas, interrupciones, falta o defecto de las telecomunicaciones que pudieran ocurrir.
IV. POLÍTICA DE PRIVACIDAD Y PROTECCIÓN DE DATOS
Respetando lo establecido en la legislación vigente, Estudio UAD (Juan José Martínez Rodríguez) se compromete a adoptar las medidas técnicas y organizativas necesarias, según el nivel de seguridad adecuado al riesgo de los datos recogidos.
Leyes que incorpora esta política de privacidad
Esta política de privacidad está adaptada a la normativa Española y Europea vigente en materia de Protección de Datos Personales en internet. En concreto, la misma respeta las siguientes normas:
Identidad del Responsable del Tratamiento de los Datos Personales
El Responsable del Tratamiento de los Datos Personales recogidos en https://estudiouad.com (En adelante Responsable del Fichero).
Estudio UAD (Juan José Martínez Rodríguez) – NIF 78488815G
Dirección:
Calle León y Castillo, nº 335 – C.P. 35006 Las Palmas de Gran Canaria – Las Palmas
Correo electrónico: jjmartinez@estudiouad.com
Datos de Carácter Personal
Los datos personales recabados por el Responsable del Fichero, mediante los formularios extendidos en sus páginas, serán introducidos en un fichero automatizado bajo la responsabilidad del Responsable del Tratamiento, con la finalidad de poder facilitar, agilizar y cumplir los compromisos establecidos entre el Responsable del Fichero y el Usuario o el mantenimiento de la relación que se establezca en los formularios que éste rellene, o para atender una solicitud o consulta de este.
Principios aplicables al Tratamiento de los Datos Personales
Categorías de datos personales
Las categorías de datos que se tratan en la web del Responsable del Fichero son únicamente datos identificativos. En ningún caso, se tratan categorías especiales de Datos Personales en el sentido del artículo 9 del RGPD
Base legal para el tratamiento de los datos personales
La base legal para el tratamiento de los datos personales es el consentimiento. El Responsable del Fichero se compromete a recabar el consentimiento expreso y verificable del Usuario para el tratamiento de sus datos personales para uno o varios fines específicos.
El Usuario tendrá derecho a retirar su consentimiento en cualquier momento. Será tan fácil retirar el consentimiento como darlo. Como regla general, la retirada del consentimiento no condicionará el uso del Sitio Web.
En las ocasiones en las que el Usuario deba o pueda facilitar sus datos a través de formularios para realizar consultas, solicitar información o por motivos relacionados con el contenido del Sitio Web, se le informará en caso de que la cumplimentación de alguno de ellos sea obligatoria debido a que los mismos sean imprescindibles para el correcto desarrollo de la operación realizada.
Fines del tratamiento a que se destinan los datos personales
Los datos personales son recabados y gestionados por el Responsable del Fichero con la finalidad de poder facilitar, agilizar y cumplir los compromisos establecidos entre el Sitio Web y el Usuario o el mantenimiento de la relación que se establezca en los formularios que este último rellene o para atender una solicitud o consulta.
Igualmente, los datos podrán ser utilizados con una finalidad comercial de personalización, operativa y estadística, o actividades propias del objeto social del Responsable del Fichero, así como para la extracción, almacenamiento de datos y estudios de marketing para adecuar el Contenido ofertado al Usuario, así como mejorar la calidad, funcionamiento y navegación por el Sitio Web.
En el momento en que se obtengan los datos personales, se informará al Usuario acerca del fin o fines específicos del tratamiento a que se destinarán los datos personales; es decir, del uso o usos que se dará a la información recopilada.
Períodos de retención de los datos personales
Los datos personales solo serán retenidos durante el tiempo mínimo necesario para los fines de su tratamiento, o hasta que el Usuario solicite su supresión.
En el momento en que se obtengan los datos personales, se informará al Usuario acerca del plazo durante el cual se conservarán los datos personales o, cuando eso no sea posible, los criterios utilizados para determinar este plazo.
Destinatarios de los Datos Personales
Los datos personales del Usuario no serán compartidos con ninguna entidad, excepto las exigencias legales.
En caso de que el Responsable del tratamiento tenga la intención de transferir datos personales a un tercer país u organización internacional, en el momento en que se obtengan los datos personales, se informará al Usuario acerca del tercer país u organización internacional al cual se tiene la intención de transferir los datos, así como de la existencia o ausencia de una decisión de adecuación de la Comisión.
Datos personales de menores de edad
Respetando lo establecido en los artículos 8 del RGPDy 13 del RDLOPD, solo los mayores de 14 años podrán otorgar su consentimiento para el tratamiento de sus datos personales de forma lícita por parte del Responsable del Fichero se trata de un menor de 14 años, será necesario el consentimiento de los padres o tutores para el tratamiento, y este solo se considerará lícito en la medida en la que los mismos lo hayan autorizado.
Secreto y seguridad de los datos personales
El Responsable del Fichero se compromete a adoptar las medidas técnicas y organizativas necesarias, según el nivel de seguridad adecuado al riesgo de los datos recogidos, de forma que se garantice la seguridad de los datos de carácter personal y se evite la destrucción, pérdida o alteración accidental o ilícita de datos personales transmitidos, conservados o tratados de otra forma, o la comunicación o acceso no autorizados a dichos datos.
Sin embargo, debido a que el Responsable del Fichero no puede garantizar la inexpugnabilidad de internet ni la ausencia total de hackers u otros que accedan de modo fraudulento a los datos personales, el Responsable del tratamiento se compromete a comunicar al Usuario sin dilación indebida cuando ocurra una violación de la seguridad de los datos personales que sea probable que entrañe un alto riesgo para los derechos y libertades de las personas físicas. Siguiendo lo establecido en el artículo 4 del RGPD, se entiende por violación de la seguridad de los datos personales toda violación de la seguridad que ocasione la destrucción, pérdida o alteración accidental o ilícita de datos personales transmitidos, conservados o tratados de otra forma, o la comunicación o acceso no autorizados a dichos datos.
Los datos personales serán tratados como confidenciales por parte del Responsable del Fichero, quien se compromete a informar de y a garantizar por medio de una obligación legal o contractual que dicha confidencialidad sea respetada por sus empleados, asociados, y toda persona a la cual le haga accesible la información.
Derechos derivados del tratamiento de los datos personales
El usuario podrá ejercer frente al Responsable del tratamiento los siguientes derechos reconocidos en el RGPD:
Así pues, el Usuario podrá ejercitar sus derechos mediante comunicación escrita. O mediante correo electrónico dirigido al Responsable del tratamiento con la referencia "RGPD-LOPDGDD especificando:
Esta solicitud y todo otro documento adjunto podrá enviarse a la siguiente dirección de correo electrónico jjmartinez@estudiouad.com
Enlaces a sitios web de terceros
El Sitio Web puede incluir hipervínculos o enlaces que permiten acceder a páginas web de terceros distintos del Responsable del Fichero y que por tanto no son operados por el Responsable del Fichero. Los titulares de dichos sitios web dispondrán de sus propias políticas de protección de datos, siendo ellos mismos, en cada caso, responsables de sus propios ficheros y de sus propias prácticas de privacidad.
Reclamaciones ante la autoridad de control
En caso de que el Usuario considere que existe un problema o infracción de la normativa vigente en la forma en la que se están tratando sus datos personales, tendrá derecho a la tutela judicial efectiva y a presentar una reclamación ante una autoridad de control, en particular, en el Estado en el que tenga su residencia habitual, lugar de trabajo o lugar de la supuesta infracción. En el caso de España, la autoridad de control es la Agencia Española de Protección de Datos (http://www.agpd.es).
Aceptación y cambios en esta política de privacidad
Es necesario que el Usuario haya leído y esté conforme con las condiciones sobre la protección de datos de carácter personal contenidas en esta Política de Privacidad, así como que acepte el tratamiento de sus datos personales para que el Responsable del tratamiento pueda proceder al mismo en la forma, durante los plazos y para las finalidades indicadas. El uso del Sitio Web implicará la aceptación de la Política de Privacidad del mismo.
El Responsable del Fichero se reserva el derecho a modificar su Política de Privacidad, de acuerdo con su propio criterio, o motivado por un cambio legislativo, jurisprudencial o doctrinal de la Agencia Española de Protección de Datos. Los cambios o actualizaciones de esta Política de Privacidad no serán notificados al Usuario por lo que se aconseja visualizar dicha Política cuando se navegue por la Web.
Esta Política de Privacidad fue actualizada el 14 de febrero de 2024 para adaptarse al Reglamento (UE) 2016/679 del Parlamento Europeo y del Consejo, de 27 de abril de 2016, relativo a la Protección de las Personas Físicas en lo que respecta al Tratamiento de Datos Personales y a la libre circulación de estos Datos (RGPD).
V. POLÍTICA DE COOKIES
El acceso a este Sitio Web puede implicar la utilización de cookies. Las cookies son pequeñas cantidades de información que se almacenan en el navegador utilizado por cada Usuario —en los distintos dispositivos que pueda utilizar para navegar— para que el servidor recuerde cierta información que posteriormente y únicamente el servidor que la implementó leerá. Las cookies facilitan la navegación, la hacen más amigable, y no dañan el dispositivo de navegación.
Las cookies son procedimientos automáticos de recogida de información relativa a las preferencias determinadas por el Usuario durante su visita al Sitio Web con el fin de reconocerlo como Usuario, y personalizar su experiencia y el uso del Sitio Web, y pueden también, por ejemplo, ayudar a identificar y resolver errores.
La información recabada a través de las cookies puede incluir la fecha y hora de visitas al Sitio Web, las páginas visionadas, el tiempo que ha estado en el Sitio Web y los sitios visitados justo antes y después del mismo. Sin embargo, ninguna cookie permite que esta misma pueda contactarse con el número de teléfono del Usuario o con cualquier otro medio de contacto personal. Ninguna cookie puede extraer información del disco duro del Usuario o robar información personal. La única manera de que la información privada del Usuario forme parte del archivo Cookie es que el usuario dé personalmente esa información al servidor.
Las cookies que permiten identificar a una persona se consideran datos personales. Por tanto, a las mismas les será de aplicación la Política de Privacidad anteriormente descrita. En este sentido, para la utilización de las mismas será necesario el consentimiento del Usuario. Este consentimiento será comunicado, en base a una elección auténtica, ofrecido mediante una decisión afirmativa y positiva, antes del tratamiento inicial, removible y documentado.
Cookies propias
Son aquellas cookies que son enviadas al ordenador o dispositivo del Usuario y gestionadas exclusivamente por el Responsable del Fichero para el mejor funcionamiento del Sitio Web. La información que se recaba se emplea para mejorar la calidad del Sitio Web y su Contenido y su experiencia como Usuario. Estas cookies permiten reconocer al Usuario como visitante recurrente del Sitio Web y adaptar el contenido para ofrecerle contenidos que se ajusten a sus preferencias.
Cookies de terceros
Son cookies utilizadas y gestionadas por entidades externas que proporcionan a el Responsable del Fichero servicios solicitados por este mismo para mejorar el Sitio Web y la experiencia del usuario al navegar en el Sitio Web. Los principales objetivos para los que se utilizan cookies de terceros son la obtención de estadísticas de accesos y analizar la información de la navegación, es decir, cómo interactúa el Usuario con el Sitio Web.
La información que se obtiene se refiere, por ejemplo, al número de páginas visitadas, el idioma, el lugar a la que la dirección IP desde el que accede el Usuario, el número de Usuarios que acceden, la frecuencia y reincidencia de las visitas, el tiempo de visita, el navegador que usan, el operador o tipo de dipositivo desde el que se realiza la visita. Esta información se utiliza para mejorar el Sitio Web, y detectar nuevas necesidades para ofrecer a los Usuarios un Contenido y/o servicio de óptima calidad. En todo caso, la información se recopila de forma anónima y se elaboran informes de tendencias del Sitio Web sin identificar a usuarios individuales.
Puede obtener más información sobre las cookies, la información sobre la privacidad, o consultar la descripción del tipo de cookies que se utiliza, sus principales características, periodo de expiración, etc. en el siguiente(s) enlace(s):
Firefox https://support.mozilla.org/es/kb/Deshabilitar%20c...
Chrome http://support.google.com/chrome/bin/answer.py?hl=...
Internet Explorer http://windows.microsoft.com/es-es/internet-explor...
Safari -> Seleccione Safari > Preferencias, haga clic en Privacidad
Opera http://help.opera.com/Windows/11.50/es-ES/cookies....
Windows Phone https://support.microsoft.com/es-es/help/10635/win...
Android ->Ajustes del navegador utilizado->Privacidad del navegador utilizado
La(s) entidad(es) encargada(s) del suministro de cookies podrá(n) ceder esta información a terceros, siempre y cuando lo exija la ley o sea un tercero el que procese esta información para dichas entidades.
Cookies de redes sociales
El Responsable del Fichero incorpora plugins de redes sociales, que permiten acceder a las mismas a partir del Sitio Web. Por esta razón, las cookies de redes sociales pueden almacenarse en el navegador del Usuario. Los titulares de dichas redes sociales disponen de sus propias políticas de protección de datos y de cookies, siendo ellos mismos, en cada caso, responsables de sus propios ficheros y de sus propias prácticas de privacidad. El Usuario debe referirse a las mismas para informarse acerca de dichas cookies y, en su caso, del tratamiento de sus datos personales. Únicamente a título informativo se indican a continuación los enlaces en los que se pueden consultar dichas políticas de privacidad y/o de cookies:
Facebook: https://www.facebook.com/policies/cookies/
Twitter: https://twitter.com/es/privacy
Instagram: https://help.instagram.com/1896641480634370?ref=ig
Youtube: https://policies.google.com/privacy?hl=es-419&gl=mx
Google+: https://policies.google.com/technologies/cookies?hl=es
Pinterest: https://policy.pinterest.com/es/privacy-policy
LinkedIn: https://www.linkedin.com/legal/cookie-policy?trk=hp-cookies
Deshabilitar, rechazar y eliminar cookies
El Usuario puede deshabilitar, rechazar y eliminar las cookies —total o parcialmente— instaladas en su dispositivo mediante la configuración de su navegador (entre los que se encuentran, por ejemplo, Chrome, Firefox, Safari, Explorer). En este sentido, los procedimientos para rechazar y eliminar las cookies pueden diferir de un navegador de Internet a otro. En consecuencia, el Usuario debe acudir a las instrucciones facilitadas por el propio navegador de Internet que esté utilizando. En el supuesto de que rechace el uso de cookies —total o parcialmente— podrá seguir usando el Sitio Web, si bien podrá tener limitada la utilización de algunas de las prestaciones del mismo.
Cambios en la Política de Cookies
Es posible que la Política de Cookies del Sitio Web cambie o se actualice, por ello es recomendable que el Usuario revise esta política cada vez que acceda al Sitio Web con el objetivo de estar adecuadamente informado sobre cómo y para qué usamos las cookies.
VI. POLÍTICA DE ENLACES
Se informa que el Sitio Web, pone o pueden poner a disposición de los Usuarios medios de enlace (como, entre otros, links, banners, botones), directorios y motores de búsqueda que permiten a los Usuarios acceder a sitios web pertenecientes y/o gestionados por terceros.
La instalación de estos enlaces, directorios y motores de búsqueda en el Sitio Web tiene por objeto facilitar a los Usuarios la búsqueda de y acceso a la información disponible en Internet, sin que pueda considerarse una sugerencia, recomendación o invitación para la visita de los mismos.
El Responsable del Fichero no ofrece ni comercializa por sí ni por medio de terceros los productos y/o servicios disponibles en dichos sitios enlazados.
Asimismo, tampoco garantizará la disponibilidad técnica, exactitud, veracidad, validez o legalidad de sitios ajenos a su propiedad a los que se pueda acceder por medio de los enlaces.
El Responsable del Fichero en ningún caso revisará o controlará el contenido de otros sitios web, así como tampoco aprueba, examina ni hace propios los productos y servicios, contenidos, archivos y cualquier otro material existente en los referidos sitios enlazados.
El Responsable del Fichero no asume ninguna responsabilidad por los daños y perjuicios que pudieran producirse por el acceso, uso, calidad o licitud de los contenidos, comunicaciones, opiniones, productos y servicios de los sitios web no gestionados por el Responsable del Fichero y que sean enlazados en este Sitio Web.
El Usuario o tercero que realice un hipervínculo desde una página web de otro, distinto, Sitio Web al Sitio Web del Responsable del Fichero deberá saber que:
No se permite la reproducción —total o parcialmente— de ninguno de los Contenidos y/o Servicios del Sitio Web sin autorización expresa del Responsable del Fichero.
No se permite tampoco ninguna manifestación falsa, inexacta o incorrecta sobre el Sitio Web del Responsable del Fichero ni sobre los Contenidos y/o Servicios del mismo.
A excepción del hipervínculo, el Sitio Web en el que se establezca dicho hiperenlace no contendrá ningún elemento, de este Sitio Web, protegido como propiedad intelectual por el ordenamiento jurídico español, salvo autorización expresa del Responsable del Fichero.
El establecimiento del hipervínculo no implicará la existencia de relaciones entre el Responsable del Fichero y el titular del Sitio Web desde el cual se realice, ni el conocimiento y aceptación de los contenidos, servicios y/o actividades ofrecidas en dicho Sitio Web, y viceversa.
VII. PROPIEDAD INTELECTUAL E INDUSTRIAL
El Responsable del Fichero, por sí o como parte cesionaria, es titular de todos los derechos de propiedad intelectual e industrial del Sitio Web, así como de los elementos contenidos en el mismo (a título enunciativo y no exhaustivo, imágenes, sonido, audio, vídeo, software o textos, marcas o logotipos, combinaciones de colores, estructura y diseño, selección de materiales usados, programas de ordenador necesarios para su funcionamiento, acceso y uso, etc.). Serán, por consiguiente, obras protegidas como propiedad intelectual por el ordenamiento jurídico español, siéndoles aplicables tanto la normativa española y comunitaria en este campo, como los tratados internacionales relativos a la materia y suscritos por España.
Todos los derechos reservados. En virtud de lo dispuesto en la Ley de Propiedad Intelectual, quedan expresamente prohibidas la reproducción, la distribución y la comunicación pública, incluida su modalidad de puesta a disposición, de la totalidad o parte de los contenidos de esta página web, con fines comerciales, en cualquier soporte y por cualquier medio técnico, sin la autorización del Responsable del Fichero.
El Usuario se compromete a respetar los derechos de propiedad intelectual e industrial del Responsable del Fichero. Podrá visualizar los elementos del Sitio Web o incluso imprimirlos, copiarlos y almacenarlos en el disco duro de su ordenador o en cualquier otro soporte físico siempre y cuando sea, exclusivamente, para su uso personal. El Usuario, sin embargo, no podrá suprimir, alterar, o manipular cualquier dispositivo de protección o sistema de seguridad que estuviera instalado en el Sitio Web.
En caso de que el Usuario o tercero considere que cualquiera de los Contenidos del Sitio Web suponga una violación de los derechos de protección de la propiedad intelectual, deberá comunicarlo inmediatamente a el Responsable del Fichero a través de los datos de contacto del apartado de INFORMACIÓN GENERAL de este Aviso Legal.
VIII. ACCIONES LEGALES, LEGISLACIÓN APLICABLE Y JURISDICCIÓN
El Responsable del Fichero se reserva la facultad de presentar las acciones civiles o penales que considere necesarias por la utilización indebida del Sitio Web y Contenidos, o por el incumplimiento de las presentes Condiciones.
La relación entre el Usuario y el Responsable del Fichero se regirá por la normativa vigente y de aplicación en el territorio español. De surgir cualquier controversia en relación a la interpretación y/o a la aplicación de estas Condiciones las partes someterán sus conflictos a la jurisdicción ordinaria sometiéndose a los jueces y tribunales que correspondan conforme a derecho.
Las Palmas de Gran Canaria – Las Palmas 14.02.2024
Versión 01/2024

I. POLÍTICA DE PRIVACIDAD Y PROTECCIÓN DE DATOS
Respetando lo establecido en la Legislación vigente, https://estudiouad.com (en adelante, también Sitio Web).
Estudio UAD (Juan José Martínez Rodríguez) se compromete a adoptar las Medidas Técnicas y Organizativas necesarias, según el nivel de Seguridad adecuado al Riesgo de los Datos recogidos.
Leyes que incorpora esta política de privacidad
Esta Política de Privacidad está adaptada a la Normativa Española y Europea vigente en materia de Protección de Datos Personales en internet. En concreto, la misma respeta las siguientes normas:
Identidad del Responsable del Tratamiento de los Datos Personales
El Responsable del Tratamiento de los Datos Personales recogidos en https://estudiouad.com
(En adelante Responsable del Fichero).
Estudio UAD (Juan José Martínez Rodríguez) – NIF 78488815G
Calle León y Castillo, nº 335 – C.P. 35006 Las Palmas de Gran Canaria – Las Palmas
Correo electrónico: jjmartinez@estudiouad.com
Registro de Datos de Carácter Personal
Los Datos Personales recabados por https://estudiouad.com mediante los formularios extendidos en su página, serán introducidos en un fichero automatizado bajo la responsabilidad del Responsable del Tratamiento. Con la finalidad de poder facilitar, agilizar y cumplir los compromisos establecidos entre el Responsable de Tratamiento y el Usuario o el mantenimiento de la relación que se establezca en los formularios que este rellene, o para atender una solicitud o consulta del mismo.
Principios aplicables al tratamiento de los datos personales
Categorías de datos personales
Las categorías de Datos que se tratan en https://estudiouad.com son únicamente Datos Identificativos. En ningún caso, se tratan categorías especiales de Datos Personales en el sentido del artículo 9 del RGPD.
Base legal para el tratamiento de los datos personales
La Base Legal para el Tratamiento de los Datos Personales es el Consentimiento. Los Responsables del Tratamiento se comprometen a recabar el Consentimiento Expreso y verificable del Usuario para el Tratamiento de sus Datos Personales para uno o varios fines específicos.
El Usuario tendrá derecho a retirar su consentimiento en cualquier momento. Será tan fácil retirar el consentimiento como darlo. Como regla general, la retirada del consentimiento no condicionará el uso del Sitio Web.
En las ocasiones en las que el Usuario deba o pueda facilitar sus datos a través de formularios para realizar consultas, solicitar información o por motivos relacionados con el contenido del Sitio Web, se le informará en caso de que la cumplimentación de alguno de ellos sea obligatoria debido a que los mismos sean imprescindibles para el correcto desarrollo de la operación realizada.
Fines del tratamiento a que se destinan los datos personales
Los Datos Personales son recabados y gestionados por https://estudiouad.com se realizan con la finalidad de poder facilitar, agilizar y cumplir los compromisos establecidos entre los Sitios Web y el Usuario o el mantenimiento de la relación que se establezca en los formularios que este último rellene o para atender una solicitud o consulta.
Igualmente, los datos podrán ser utilizados con una finalidad comercial de personalización, operativa y estadística, y actividades propias del objeto social del Responsable del Fichero, así como para la extracción, almacenamiento de datos y estudios de marketing para adecuar el Contenido ofertado al Usuario, así como mejorar la calidad, funcionamiento y navegación por el Sitio Web.
En el momento en que se obtengan los datos personales, se informará al Usuario acerca del fin o fines específicos del tratamiento a que se destinarán los datos personales; es decir, del uso o usos que se dará a la información recopilada.
Períodos de retención de los Datos Personales
Los Datos Personales solo serán retenidos durante el tiempo mínimo necesario para los fines de su tratamiento o hasta que el Usuario solicite su supresión.
En el momento en que se obtengan los Datos Personales, se informará al Usuario acerca del plazo durante el cual se conservarán los Datos Personal eso, cuando eso no sea posible, los criterios utilizados para determinar este plazo.
Destinatarios de los Datos Personales
Los Datos Personales del Usuario no serán compartidos con terceros.
En cualquier caso, en el momento en que se obtengan los Datos Personales, se informará al Usuario acerca de los destinatarios o las categorías de destinatarios de los datos personales.
Datos Personales de menores de edad
Respetando lo establecido en los artículos 8 del RGPD y 7 de la Ley Orgánica 3/2018, de 5 de diciembre, de Protección de Datos Personales y Garantía de los Derechos Digitales, sólo los mayores de 14 años podrán otorgar su consentimiento para el tratamiento de sus Datos Personales de forma lícita por parte del Responsable del Tratamiento. Si se trata de un menor de 14 años, será necesario el consentimiento de los padres o tutores para el tratamiento, y este solo se considerará lícito en la medida en la que los mismos lo hayan autorizado.
Secreto y seguridad de los datos personales
https://estudiouad.com se compromete a adoptar las medidas técnicas y organizativas necesarias, según el nivel de seguridad adecuado al riesgo de los datos recogidos, de forma que se garantice la seguridad de los datos de carácter personal y se evite la destrucción, pérdida o alteración accidental o ilícita de Datos Personales transmitidos, conservados o tratados de otra forma, o la comunicación o acceso no autorizados a dichos datos.
Sin embargo, debido a que el Responsable del Tratamiento no puede garantizar la inexpugnabilidad de internet ni la ausencia total de hackers u otros que accedan de modo fraudulento a los datos personales, el Responsable del tratamiento se compromete a comunicar al Usuario sin dilación indebida cuando ocurra una violación de la seguridad de los Datos Personales que sea probable que entrañe un alto riesgo para los derechos y libertades de las personas físicas. Siguiendo lo establecido en el artículo 4 del RGPD, se entiende por violación de la seguridad de los Datos Personales toda violación de la seguridad que ocasione la destrucción, pérdida o alteración accidental o ilícita de Datos Personales transmitidos, conservados o tratados de otra forma, o la comunicación o acceso no autorizados a dichos datos.
Los Datos Personales serán tratados como confidenciales por el Responsable del Tratamiento, quien se compromete a informar y a garantizar por medio de una obligación legal o contractual que dicha confidencialidad sea respetada por sus empleados, asociados, y toda persona a la cual le haga accesible la información.
Derechos derivados del Tratamiento de los Datos Personales
El Usuario tiene acceso sobre https://estudiouad.com y podrá, ejercer frente al Responsable del Tratamiento los siguientes derechos, reconocidos en el RGPD y en la Ley Orgánica 3/2018, de 5 de diciembre, de Protección de Datos Personales y Garantía de los Derechos Digitales:
Así pues, el Usuario podrá ejercitar sus derechos mediante comunicación por correo postal o correo electrónico, dirigida al Responsable del tratamiento con la referencia "RGPD-LOPDGDD", especificando:
Esta solicitud y todo otro documento adjunto podrá enviarse a la siguiente dirección postal y/o correo electrónico:
Calle León y Castillo, nº 335 – C.P. 35006 Las Palmas de Gran Canaria – Las Palmas
Correo electrónico: jjmartinez@estudiouad.com
Enlaces a sitios web de terceros
Los sitios Web puede incluir hipervínculos o enlaces que permiten acceder a páginas web de terceros distintos de https://estudiouad.com y que por tanto no son operados por los Responsables del Tratamiento. Los titulares de dichos sitios web dispondrán de sus propias Políticas de Protección de Datos, siendo ellos mismos, en cada caso, Responsables de sus propios Ficheros y de sus propias prácticas de Privacidad.
Reclamaciones ante la autoridad de control
En caso de que el Usuario considere que existe un problema o infracción de la normativa vigente en la forma en la que se están tratando sus datos personales, tendrá derecho a la tutela judicial efectiva y a presentar una reclamación ante una Autoridad de Control, en particular, en el Estado en el que tenga su residencia habitual, lugar de trabajo o lugar de la supuesta infracción. En el caso de España, la autoridad de control es la Agencia Española de Protección de Datos (https://www.aepd.es/es).
II. POLÍTICA DE COOKIES
El acceso a este Sitio Web puede implicar la utilización de cookies. Las cookies son pequeñas cantidades de información que se almacenan en el navegador utilizado por cada Usuario —en los distintos dispositivos que pueda utilizar para navegar— para que el servidor recuerde cierta información que posterior y únicamente el servidor que la implementó leerá. Las cookies facilitan la navegación, la hacen más amigable, y no dañan el dispositivo de navegación.
Las cookies son procedimientos automáticos de recogida de información relativa a las preferencias determinadas por el Usuario durante su visita al Sitio Web con el fin de reconocerlo como Usuario, y personalizar su experiencia y el uso del Sitio Web, y pueden también, por ejemplo, ayudar a identificar y resolver errores.
La información recabada a través de las cookies puede incluir la fecha y hora de visitas al Sitio Web, las páginas visionadas, el tiempo que ha estado en el Sitio Web y los sitios visitados justo antes y después del mismo. Sin embargo, ninguna cookie permite que esta misma pueda contactarse con el número de teléfono del Usuario o con cualquier otro medio de contacto personal. Ninguna cookie puede extraer información del disco duro del Usuario o robar información personal. La única manera de que la información privada del Usuario forme parte del archivo Cookie es que el usuario dé personalmente esa información al servidor.
Las cookies que permiten identificar a una persona se consideran datos personales. Por tanto, a las mismas les será de aplicación la Política de Privacidad anteriormente descrita. En este sentido, para la utilización de las mismas será necesario el consentimiento del Usuario. Este consentimiento será comunicado, en base a una elección auténtica, ofrecido mediante una decisión afirmativa y positiva, antes del tratamiento inicial, removible y documentado.
Cookies propias
Son aquellas cookies que son enviadas al ordenador o dispositivo del Usuario y gestionadas exclusivamente por https://estudiouad.com para el mejor funcionamiento de los sitios Web. La información que se recaba se emplea para mejorar la calidad de los sitios Web y su Contenido y su experiencia como Usuario. Estas cookies permiten reconocer al Usuario como visitante recurrente del sitio Web y adaptar el contenido para ofrecerle contenidos que se ajusten a sus preferencias.
Cookies de terceros
Son cookies utilizadas y gestionadas por entidades externas que proporcionan a https://estudiouad.com servicios solicitados por este mismo para mejorar el sitio Web y la experiencia del usuario al navegar en el sitio Web. Los principales objetivos para los que se utilizan cookies de terceros son la obtención de estadísticas de accesos y analizar la información de la navegación, es decir, cómo interactúa el Usuario con los sitios Web.
La información que se obtiene se refiere, por ejemplo, al número de páginas visitadas, el idioma, el lugar a la que la dirección IP desde el que accede el Usuario, el número de Usuarios que acceden, la frecuencia y reincidencia de las visitas, el tiempo de visita, el navegador que usan, el operador o tipo de dispositivo desde el que se realiza la visita. Esta información se utiliza para mejorar los sitios Web, y detectar nuevas necesidades para ofrecer a los Usuarios un Contenido y/o servicio de óptima calidad. En todo caso, la información se recopila de forma anónima y se elaboran informes de tendencias de los sitios Web sin identificar a usuarios individuales.
Puede obtener más información sobre las cookies, la información sobre la privacidad, o consultar la descripción del tipo de cookies que se utiliza, sus principales características, periodo de expiración, etc. en el siguiente(s) enlace(s):
Firefox https://support.mozilla.org/es/kb/Deshabilitar%20c...
Chrome http://support.google.com/chrome/bin/answer.py?hl=...
Internet Explorer http://windows.microsoft.com/es-es/internet-explor...
Safari -> Seleccione Safari > Preferencias, haga clic en Privacidad
Opera http://help.opera.com/Windows/11.50/es-ES/cookies....
Windows Phone https://support.microsoft.com/es-es/help/10635/win...
Android ->Ajustes del navegador utilizado->Privacidad del navegador utilizado
La(s) entidad(es) encargada(s) del suministro de cookies podrá(n) ceder esta información a terceros, siempre y cuando lo exija la ley o sea un tercero el que procese esta información para dichas entidades.
Cookies de redes sociales
https://estudiouad.com incorpora plugins de redes sociales, que permiten acceder a las mismas a partir del Sitio Web. Por esta razón, las cookies de redes sociales pueden almacenarse en el navegador del Usuario. Los titulares de dichas redes sociales disponen de sus propias Políticas de Protección de Datos y de Cookies, siendo ellos mismos, en cada caso, Responsables de sus Propios Ficheros y de sus Propias Prácticas de Privacidad. El Usuario debe referirse a las mismas para informarse acerca de dichas cookies y, en su caso, del Tratamiento de sus Datos Personales. Únicamente a título informativo se indican a continuación los enlaces en los que se pueden consultar dichas Políticas de Privacidad y/o de Cookies:
Facebook: https://www.facebook.com/policies/cookies/
Twitter: https://twitter.com/es/privacy
Instagram: https://help.instagram.com/1896641480634370?ref=ig
Youtube: https://policies.google.com/privacy?hl=es-419&gl=mx
Google+: https://policies.google.com/technologies/cookies?hl=es
Pinterest: https://policy.pinterest.com/es/privacy-policy
LinkedIn: https://www.linkedin.com/legal/cookie-policy?trk=hp-cookies
Deshabilitar, rechazar y eliminar cookies
El Usuario puede deshabilitar, rechazar y eliminar las cookies —total o parcialmente— instaladas en su dispositivo mediante la configuración de su navegador (entre los que se encuentran, por ejemplo, Chrome, Firefox, Safari, Explorer). En este sentido, los procedimientos para rechazar y eliminar las cookies pueden diferir de un navegador de Internet a otro. En consecuencia, el Usuario debe acudir a las instrucciones facilitadas por el propio navegador de Internet que esté utilizando. En el supuesto de que rechace el uso de cookies —total o parcialmente— podrá seguir usando los Sitios Web, si bien podrá tener limitada la utilización de algunas de las prestaciones del mismo.
III. ACEPTACIÓN Y CAMBIOS EN ESTA POLÍTICA DE PRIVACIDAD
Es necesario que el Usuario haya leído y esté conforme con las condiciones sobre la Protección de Datos de Carácter Personal contenidas en esta Política de Privacidad y de Cookies, así como que acepte el Tratamiento de sus Datos Personales para que el Responsable del tratamiento pueda proceder al mismo en la forma, durante los plazos y para las finalidades indicadas. El uso de los sitios Web implicará la Aceptación de la Política de Privacidad y de Cookies del mismo.
https://estudiouad.com se reserva el Derecho a modificar su Política de Privacidad y de Cookies, de acuerdo a su propio criterio, o motivado por un cambio legislativo, jurisprudencial o doctrinal de la Agencia Española de Protección de Datos. Los cambios o actualizaciones de esta Política de Privacidad y de Cookies no serán notificados de forma explícita al Usuario. Se recomienda al Usuario consultar esta página de forma periódica para estar al tanto de los últimos cambios o actualizaciones.
Esta Política de Privacidad y de Cookies fue actualizada el día 14 de febrero de 2024, adaptándose al Reglamento (UE) 2016/679 del Parlamento Europeo y del Consejo, de 27 de abril de 2016, relativo a la Protección de las Personas Físicas en lo que respecta Tratamiento de Datos Personales y a la Libre Circulación de estos Datos (RGPD) y a la Ley Orgánica 3/2018, de 5 de diciembre, de Protección de Datos Personales y Garantía de los Derechos Digitales.